Built in 2015
11 years old
| Date | Project Name | Address | Size (sqm) | Price | PSF | Floor | Type | Segment | District | Tenure |
|---|---|---|---|---|---|---|---|---|---|---|
| 2023-02 | SKYLINE @ ORCHARD BOULEVARD | ANGULLIA PARK | 350 sqm (3767 sqft) | $20,234,000 | $5371/sqft | 31-35 | Apartment | CCR | 09 | Freehold |

This listing is sourced from public market data. Individual agent details are not displayed for market data listings.
Step into a world of modern luxury as you enter this exquisite unit at Skyline @ Orchard Boulevard. The abundant natural light floods through the floor-to-ceiling windows, illuminating the elegant marble-look flooring and highlighting the stunning double-volume ceiling. The slatted wooden feature wall adds a touch of sophistication, creating an inviting ambiance that makes you feel right at home.
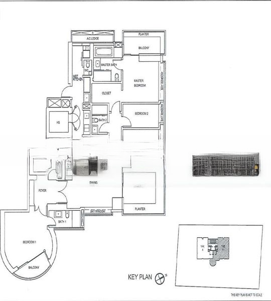
This well-maintained 4-bedroom, 4-bathroom unit boasts an open-concept layout that seamlessly integrates the living and dining areas. The designer chandelier above the six-seater dining table complements the stylish decor, while the internal staircase leads to a private retreat. Each bedroom features high ceilings and large windows, providing a serene escape with views of the vibrant city skyline.
Situated in the heart of District 09, this prestigious address offers unparalleled convenience with Orchard MRT just a short stroll away. Enjoy proximity to renowned schools, upscale shopping malls, and a variety of dining options. Experience the ultimate urban lifestyle in this prime location, where luxury meets accessibility.
Step into a world of modern luxury as you enter this exquisite unit at Skyline @ Orchard Boulevard. The abundant natural light floods through the floor-to-ceiling windows, illuminating the elegant marble-look flooring and highlighting the stunning double-volume ceiling. The slatted wooden feature wall adds a touch of sophistication, creating an inviting ambiance that makes you feel right at home.
2.00%, 30-year fixed
Maintenance, taxes, insurance
Lawyer, bank fees
These are estimated costs. Your actual rate and costs are subject to prevailing rates. This is not financial advice.
2.00%, 30-year fixed
Maintenance, taxes, insurance
Lawyer, bank fees
These are estimated costs. Your actual rate and costs are subject to prevailing rates. This is not financial advice.
Get competitive offers from multiple Singapore banks with one application.
Current 2-Year Fixed Rate
Average across major banks
Updated daily
Free application • Multiple bank offers • No commitment required