TIONG BAHRU MRT STATION
East West Line • 6 min walk
Built in 1996
30 years old

This listing is sourced from public market data. Individual agent details are not displayed for market data listings.
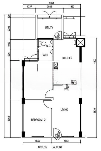
Step into this well-maintained 3-room flat at 129 BT Merah View, where bright and airy spaces greet you with a warm ambiance. The large format floor tiles in the living room contrast beautifully with the white walls, while the floating wall shelf and recessed ceiling lights add a modern touch. Natural light filters through, enhancing the inviting atmosphere throughout the unit.
This efficient corridor layout features two cozy bedrooms adorned with traditional wood parquet flooring, providing a classic charm. The kitchen boasts a long dark brown solid surface countertop, complemented by light wood grain base cabinets and a tiled backsplash, perfect for culinary enthusiasts. Additional highlights include a dedicated utility room with a window, a ceiling-mounted laundry rack, and split-unit air conditioning for your comfort.
Located in the heart of Bukit Merah, this flat is just a short walk from the nearest MRT station, offering seamless connectivity to the rest of Singapore. Families will appreciate the proximity to reputable schools and local amenities, including hawker centres and parks, making it an ideal choice for a vibrant lifestyle in a well-established district.
Step into this well-maintained 3-room flat at 129 BT Merah View, where bright and airy spaces greet you with a warm ambiance. The large format floor tiles in the living room contrast beautifully with the white walls, while the floating wall shelf and recessed ceiling lights add a modern touch. Natural light filters through, enhancing the inviting atmosphere throughout the unit.