ANG MO KIO MRT STATION
North South Line • 8 min walk
Built in 1984
42 years old

This listing is sourced from public market data. Individual agent details are not displayed for market data listings.
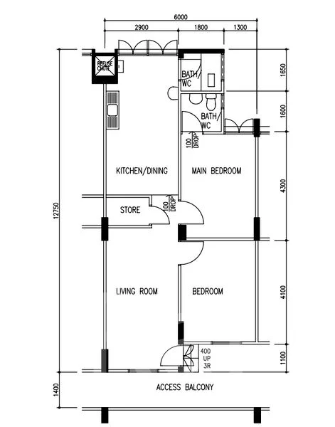
Step into this functional 2-bedroom HDB flat that greets you with a sense of practicality and comfort. The living room, adorned with tiled flooring and a sleek black leather sofa, is complemented by natural light filtering through the windows, creating a warm ambiance. Recessed wall niches add a touch of character, while the ceiling fan ensures a cool breeze throughout.
The layout features a well-equipped kitchen with a stainless steel backsplash and countertop, dual-tone overhead cabinets, and a gas hob, perfect for culinary enthusiasts. The dining area is inviting, furnished with a wooden dining table and chairs, while both bedrooms are fitted with air conditioning for a restful retreat. This unit is fully-furnished, ready for you to move in and make it your own.
Located at 506 Ang Mo Kio Ave 8, this property is surrounded by a vibrant community. The nearest MRT station is just a short walk away, providing easy access to the city. Families will appreciate the proximity to reputable schools and various amenities, including hawker centres and parks, making it an ideal choice for those seeking a balanced lifestyle in a well-established district.
Step into this functional 2-bedroom HDB flat that greets you with a sense of practicality and comfort. The living room, adorned with tiled flooring and a sleek black leather sofa, is complemented by natural light filtering through the windows, creating a warm ambiance. Recessed wall niches add a touch of character, while the ceiling fan ensures a cool breeze throughout.