HAVELOCK MRT STATION
Thomson-East Coast Line • 2 min walk

This listing is sourced from public market data. Individual agent details are not displayed for market data listings.
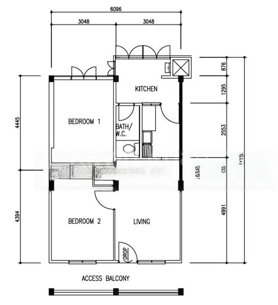
Step into this well-maintained 2-bedroom flat at Taman Ho Swee and be greeted by a refreshing ambiance filled with natural light and a serene view of lush greenery. The simple yet functional design features grey tiled flooring and ceiling fans in every room, creating a comfortable living space that invites relaxation.
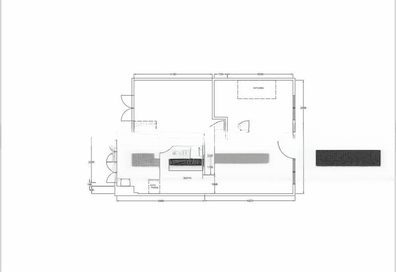
This unit boasts a practical layout with a cozy living room that seamlessly connects to the dining area, perfect for entertaining. The kitchen is equipped with wooden shelving and ample storage, while the bathroom features modern white tiled walls and an instant water heater for your convenience. Each bedroom comes with air conditioning and a built-in desk, ensuring a comfortable retreat after a long day.
Located in the heart of Bukit Merah, this property is just a short walk to the nearest MRT station, providing easy access to the rest of the city. Families will appreciate the proximity to reputable schools and a variety of local amenities, including hawker centres and parks, making it an ideal choice for a vibrant lifestyle in Singapore.
Step into this well-maintained 2-bedroom flat at Taman Ho Swee and be greeted by a refreshing ambiance filled with natural light and a serene view of lush greenery. The simple yet functional design features grey tiled flooring and ceiling fans in every room, creating a comfortable living space that invites relaxation.