BUKIT BATOK MRT STATION
North South Line • 2 min walk
Built in 2003
23 years old

This listing is sourced from public market data. Individual agent details are not displayed for market data listings.
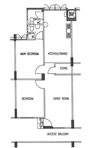
Step into this well-maintained HDB flat and feel the inviting ambiance created by the spacious living area, adorned with polished stone flooring and large windows that allow natural light to filter through. The simple yet functional design ensures comfort and ease, making it a perfect home for families.
This unit features three generous bedrooms, including a master with a sliding door wardrobe and terrazzo flooring, providing ample storage. The kitchen is equipped with a gas stove and an overhead laundry rack, while the utility room offers additional convenience with a washing machine space and an extra toilet. Enjoy the practicality of built-in wardrobes and window security grilles throughout the flat.
Located in the heart of Bukit Batok, this property is just a short walk from the Bukit Batok MRT station, ensuring easy access to the city. Families will appreciate the proximity to reputable schools and various amenities, including shopping malls and hawker centres, enhancing your lifestyle in this vibrant district.
Step into this well-maintained HDB flat and feel the inviting ambiance created by the spacious living area, adorned with polished stone flooring and large windows that allow natural light to filter through. The simple yet functional design ensures comfort and ease, making it a perfect home for families.