YISHUN MRT STATION
North South Line • 8 min walk

This listing is sourced from public market data. Individual agent details are not displayed for market data listings.
Step into a well-maintained 2-bedroom flat that exudes a clean and functional ambiance. The bright white tiled kitchen welcomes you with its spacious layout, complemented by a large two-door refrigerator that promises convenience for your culinary adventures. The bathroom stands out with its stylish round mirror and glass shelving, creating a modern touch amidst the practical design.
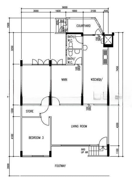
This thoughtfully designed unit features two comfortable bedrooms and two bathrooms, ensuring ample space for relaxation and privacy. The partial renovation enhances the overall appeal, while the louvred window in the bathroom allows for ventilation, maintaining a fresh atmosphere. The layout maximizes the 800 sqft floor area, making it perfect for both families and professionals.
Located in the vibrant Yishun district, this flat is just a short distance from Yishun MRT station, providing easy access to the rest of Singapore. Families will appreciate the proximity to reputable schools and a variety of amenities, including shopping malls and hawker centres, ensuring a convenient lifestyle. Embrace the charm of Yishun, where urban living meets community spirit.
Step into a well-maintained 2-bedroom flat that exudes a clean and functional ambiance. The bright white tiled kitchen welcomes you with its spacious layout, complemented by a large two-door refrigerator that promises convenience for your culinary adventures. The bathroom stands out with its stylish round mirror and glass shelving, creating a modern touch amidst the practical design.