CLEMENTI MRT STATION
East West Line • 5 min walk
Built in 2017
9 years old

This listing is sourced from public market data. Individual agent details are not displayed for market data listings.
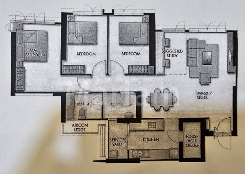
Step into this inviting 3-bedroom flat, where classic terrazzo flooring greets you with a sense of nostalgia and warmth. The large windows invite natural light, framing picturesque views of lush greenery that create a serene ambiance throughout. Vibrant accent walls add character, making each room feel unique and lively.
This efficient layout features a spacious main bedroom and two common bedrooms, perfect for families or those needing extra space. The living room, adorned with a ceiling fan and integrated lighting, flows seamlessly into the dining area, which boasts terracotta-style tiles and an open connection to the kitchen. Both bathrooms, while functional, present opportunities for personal touches with their original finishes and exposed plumbing.
Located in the heart of Clementi, this unit offers easy access to the Clementi MRT station, ensuring a smooth commute. Families will appreciate the proximity to reputable schools and a variety of amenities, including shopping malls and hawker centres. Experience a vibrant community lifestyle in this well-connected district, where convenience meets comfort.
Step into this inviting 3-bedroom flat, where classic terrazzo flooring greets you with a sense of nostalgia and warmth. The large windows invite natural light, framing picturesque views of lush greenery that create a serene ambiance throughout. Vibrant accent walls add character, making each room feel unique and lively.