RANGGUNG LRT STATION
Light Rail Transit • 4 min walk

This listing is sourced from public market data. Individual agent details are not displayed for market data listings.
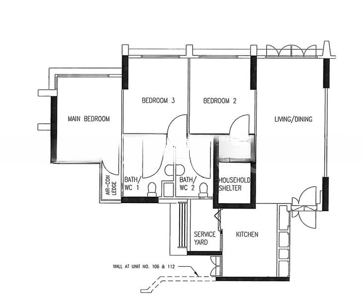
Step into a warm and inviting space where natural light dances across the marble-look tile flooring, creating a cozy ambiance throughout this well-maintained 3-bedroom flat. The extensive floor-to-ceiling built-in wardrobes offer both style and functionality, while the views of neighboring greenery provide a serene backdrop to your daily life.
This thoughtfully designed unit features an L-shaped kitchen equipped with built-in appliances, including a stainless steel cooker hood and dark countertops that contrast beautifully with the light wood cabinetry. The dedicated service yard adds practicality, complete with a utility sink and space for your washing machine. Each bedroom is a sanctuary, boasting built-in wardrobes and air conditioning, perfect for relaxation after a long day.
Located in the heart of Sengkang, this property is just a short walk from the nearest MRT station, ensuring easy access to the rest of Singapore. Families will appreciate the proximity to reputable schools and a variety of lifestyle amenities, including parks and shopping malls, making this the ideal choice for modern living.
Highlights: Cozy ambiance, Extensive built-in wardrobes, Modern L-shaped kitchen, Dedicated service yard, Close to MRT and schools
Step into a warm and inviting space where natural light dances across the marble-look tile flooring, creating a cozy ambiance throughout this well-maintained 3-bedroom flat. The extensive floor-to-ceiling built-in wardrobes offer both style and functionality, while the views of neighboring greenery provide a serene backdrop to your daily life.