REDHILL MRT STATION
East West Line • 12 min walk
Built in 1985
41 years old

This listing is sourced from public market data. Individual agent details are not displayed for market data listings.
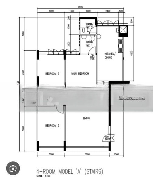
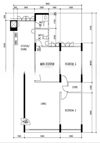
Step into this well-maintained 3-bedroom flat, where natural light filters through the windows, illuminating the simple yet functional design. The high floor offers serene views of lush greenery and neighboring HDB blocks, creating a peaceful ambiance that invites relaxation.
This unit features an L-shaped kitchen with white cabinetry, seamlessly integrated dining area, and essential appliances including a top-loading washing machine. Each bedroom is thoughtfully designed, with the master bedroom boasting en-suite bathroom access and built-in wardrobes. Safety is prioritized with grab bars in the bathrooms, making it an elderly-friendly space. The flat is fully furnished, ready for you to move in and make it your own.
Located at 113 Bt Purmei Rd, this property is conveniently situated near the Bukit Merah MRT station, providing easy access to the rest of Singapore. Families will appreciate the proximity to reputable schools and the vibrant community atmosphere of the district. Enjoy the local lifestyle with nearby parks, hawker centres, and shopping options, making this flat a perfect home for both relaxation and convenience.
Step into this well-maintained 3-bedroom flat, where natural light filters through the windows, illuminating the simple yet functional design. The high floor offers serene views of lush greenery and neighboring HDB blocks, creating a peaceful ambiance that invites relaxation.