ANG MO KIO MRT STATION
North South Line • 15 min walk
Built in 1993
33 years old

This listing is sourced from public market data. Individual agent details are not displayed for market data listings.
Step into a warm and inviting space that exudes character, where classic terrazzo flooring greets you at every turn. The moderate natural light filters through the windows, creating a cozy ambiance that feels both functional and lived-in. Enjoy urban views of neighboring buildings, offering a glimpse of city life right from your home.
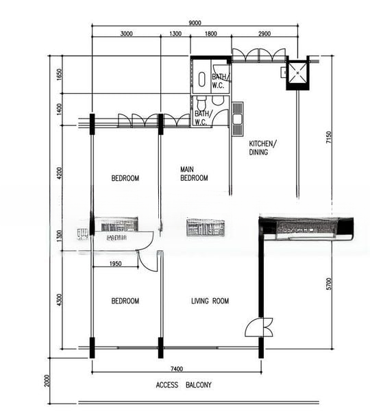
This well-maintained 3-bedroom flat features a practical layout, with each room boasting built-in wardrobes and ample space for comfortable living. The galley kitchen, complete with upper and lower cabinets in a wood-grain finish, provides plenty of storage for all your culinary needs. Each bedroom is thoughtfully designed, with one featuring a study desk area by the window, perfect for work or study.
Located in the heart of Ang Mo Kio, this property is a stone's throw from the Ang Mo Kio MRT station, ensuring easy connectivity to the rest of Singapore. Families will appreciate the proximity to reputable schools and a variety of amenities, including shopping malls and hawker centres, making this a vibrant and convenient place to call home.
Step into a warm and inviting space that exudes character, where classic terrazzo flooring greets you at every turn. The moderate natural light filters through the windows, creating a cozy ambiance that feels both functional and lived-in. Enjoy urban views of neighboring buildings, offering a glimpse of city life right from your home.