BOON KENG MRT STATION
Northeast Line • 4 min walk
Built in 2017
9 years old

This listing is sourced from public market data. Individual agent details are not displayed for market data listings.
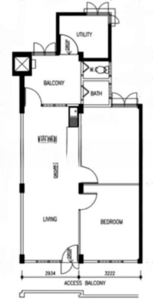
Step into this functional 2-bedroom flat and be greeted by an urban view that fills the space with a sense of city living. The moderate natural light enhances the charm of the dated yet practical finishes, while the parquet flooring in the bedrooms adds a touch of warmth to the ambiance.
The layout features a standard 3-room configuration, complete with a split bathroom and toilet for added convenience. The kitchen boasts a striking black marble-look countertop and a long galley design, perfect for culinary enthusiasts. Each bedroom offers ample space, with Bedroom 1 showcasing terrazzo flooring and Bedroom 2 benefiting from a large window that invites in natural light, creating a comfortable retreat.
Located at 30 Bendemeer Road, this flat is just a short walk from the nearest MRT station, ensuring easy access to the city. Families will appreciate the proximity to reputable schools and vibrant lifestyle amenities, including shopping malls and hawker centres, making this a practical choice for urban living.
Step into this functional 2-bedroom flat and be greeted by an urban view that fills the space with a sense of city living. The moderate natural light enhances the charm of the dated yet practical finishes, while the parquet flooring in the bedrooms adds a touch of warmth to the ambiance.