BRADDELL MRT STATION
North South Line • 13 min walk

This listing is sourced from public market data. Individual agent details are not displayed for market data listings.
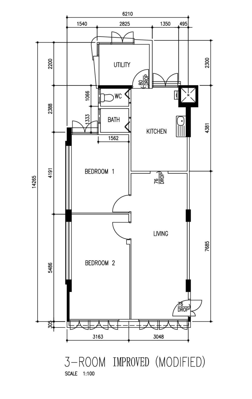
Step into this inviting HDB flat where classic terrazzo flooring greets you, exuding a sense of warmth and nostalgia. The open-plan living and dining area, bathed in moderate natural light, flows seamlessly through sliding glass doors to a cozy balcony, perfect for unwinding after a long day.
This spacious unit features three bedrooms, including a master suite with built-in study desk and vanity, complemented by ample storage solutions. The L-shaped kitchen showcases blue laminate cabinets and striking checkerboard floor tiles, offering both functionality and style. While the bathroom retains its original HDB charm, it provides a practical space for everyday use.
Located in the heart of Toa Payoh, this property is just a short walk from the Toa Payoh MRT station, ensuring easy access to the city. Families will appreciate the proximity to reputable schools and a variety of amenities, including shopping malls and hawker centres, enhancing your lifestyle in this vibrant district.
Step into this inviting HDB flat where classic terrazzo flooring greets you, exuding a sense of warmth and nostalgia. The open-plan living and dining area, bathed in moderate natural light, flows seamlessly through sliding glass doors to a cozy balcony, perfect for unwinding after a long day.